Viebrockhaus wirbt damit, dass es dort „Zuhausehäuser“ gibt – was für ein Zufall, genau ein solches wollen wir ja!
Genug gewartet nehmen wir Verhandlungen mit Viebrockhaus in Kaarst auf. Dort verspricht man 3 Monate Bauzeit. Ein Freund von mir hat vor ein paar Jahren mit denen gebaut, dass Haus war wirklich schnell fertig, sieht gut aus und steht immernoch!
Klingt lustig, ist es aber nicht! Der Bebauungsplan ist nicht Viebrockhaus-Kompatibel.
Kein einziges deren Stein-auf-Stein Typenhäuser passt auf Anhieb in unser Baufenster von 8,5m Breite * 12m Tiefe und First parallel zur schmalen Seite / Straße ;(
Wir fanden einen Grundkörper, das Hausmodell ‚Maxime 300‘ und machten es passend. [Expose_Maxime-300]
Ausgangslage war das Maxime 300 mit 45° Satteldach und 113cm Drempel im Rohbaumaß:

Aufgrund von Bestimmungen im Bebauungsplan änderten wir es in die Variante mit 35° Satteldach, 147cm Drempel im Rohbaumaß und gemauertem Giebel:

Weiterhin musste verändert werden:
Dachausrichtung gedreht um 90°
Dachüberstand auf 40cm reduziert
Zusätzlich verlängerten wir es um 40cm auf 11,95m
Nach einigen Treffen in Kaarst waren wir uns auch hier handelseinig – am 1.8. unterschrieben wir den Werkvertrag zum Festpreis.
Zusammenfassung der Ausstattung / Änderungen:
– Auswahl-Plus-2013 (u.A. Fussbodenheizung und Verblender inkl.)
– Verblender Nr. 052 (Röben Moorbrand lehm-bunt) mit weisser Fuge
– Frühbucherpaket „Einfach clever“ (3kWp PV Anlage mit 2,8kWh Hausakku)
– Keller mit einfacher Kellererhöhung, schwimmendem Estrich und Betontreppe
– Hausverlängerung auf 11,95m
– Dachdrehung um 90°
– Drempelerhöhung auf 147cm
– Einkürzung Dachüberstand auf 40cm
– Schornstein
– elektrische Rollläden (Somfy Oximo io, zentrl. Funksteuerung)
– Zentralstaubsauger
– Wäscheabwurfschacht
– Zirkulationsleitung
– zus. Warmwasserspeicher +80l
Grundrissänderungen:
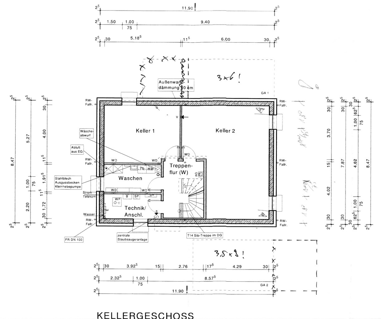
KG:
– Aus EG-HWR wird Waschen und wandert in den Keller
– Keller mit zus. Raum (Aufteilung somit: Treppenflur/Technik-Anschl./Waschen/Keller1 und Keller2)
EG:
– Aus HWR wird teilw. Garderobe, Wegfall Türe
– Aus WC wird DU-WC und bis Aussenwand verängert, Zugang nun über Garderobe!
– DU-WC mit Dusche in 120cmx90cm, Waschtisch in 60cm, Fliesen bis Decke
– Doppelflügelige Haustüre (Nr.3)
– Doppelflügelige Wohnzimmertüre mit Lichtausschnitt
– Eckfenster in Küche und zus. Ein-/Ausgang (Fenstertür mit abschliessbarem Getriebe)
– 3-flügelige Fenster Wohnz. (2,635m Breite)
– Innentüren mit 2,11m Höhe
– abschliessbare Fenstergriffe
– Zuluftventile schallgedämmt
DG:
– zus. Zimmer (Aufteilung: Schlafen, Bad, Kind1, Kind2, Gast)
– Trennwände aus Porenbeton
– Ausser Bad, je Zimmer Velux GPU MK08 mit feststehendem, senktrechtem Wandelement Velux MK35 in Drempel (notw. durch Dachdrehung)
– Bad mit Dusche in 100cmx100cm, Wanne in 180cmx80cm, zus. Waschtisch, Fliesen bis Decke, gemauerter Duschtrennwand
– Leitertreppe mit Auswechslung über Geschosstreppe, für spät. Raumspartreppe bei Spitzbodenausbau
– Innentüren mit 2,11m Höhe
– abschliessbare Fenstergriffe
– Zuluftventile schallgedämmt
– französiche Balkone (anstatt d. Kempfer)
Spitzboden:
– Dreiecksfenster in den Giebelwänden
– Vor-/Rücklaufleitungen für spät. Heizkörper (+ hydraulischer Weiche)








Hallöchen!
Zufällig sind wir über Euren Hausbaublog gestolpert! Da habt ihr ja einiges vor! Und wir haben so vieles wiedererkannt, was wir bislang erlebt haben. Unser Baubeginn ist allerdings ein paar Wochen nach Euch! Das wird spannend!
Viele Grüße aus Bonn,
SAM und SAB
Hallo Sam und Sab,
vielen Dank für Euer Kommentar.
Ich gehe davon aus, dass wir auch nicht vor März starten können.
Dann viel Spaß mit dem Hausprojekt!
Wo ist Euer Blog? 😉
Gruß Alex
Hallo Alex,
seit letzter Woche steht unser Baubeginn auf der Kippe. Die Gründe? Frag nicht. Echt ärgerlich. Wenn es Dich interessiert, schreib uns ne kurze Mail (wir haben gerade auf die Schnelle keine Kontaktadresse gesehen).
Für einen eigenen Blog reicht gerade unsere Zeit vorne und hinten nicht. Leider!!!
Viele Grüße & schöne Feiertage!
SAM+SAB